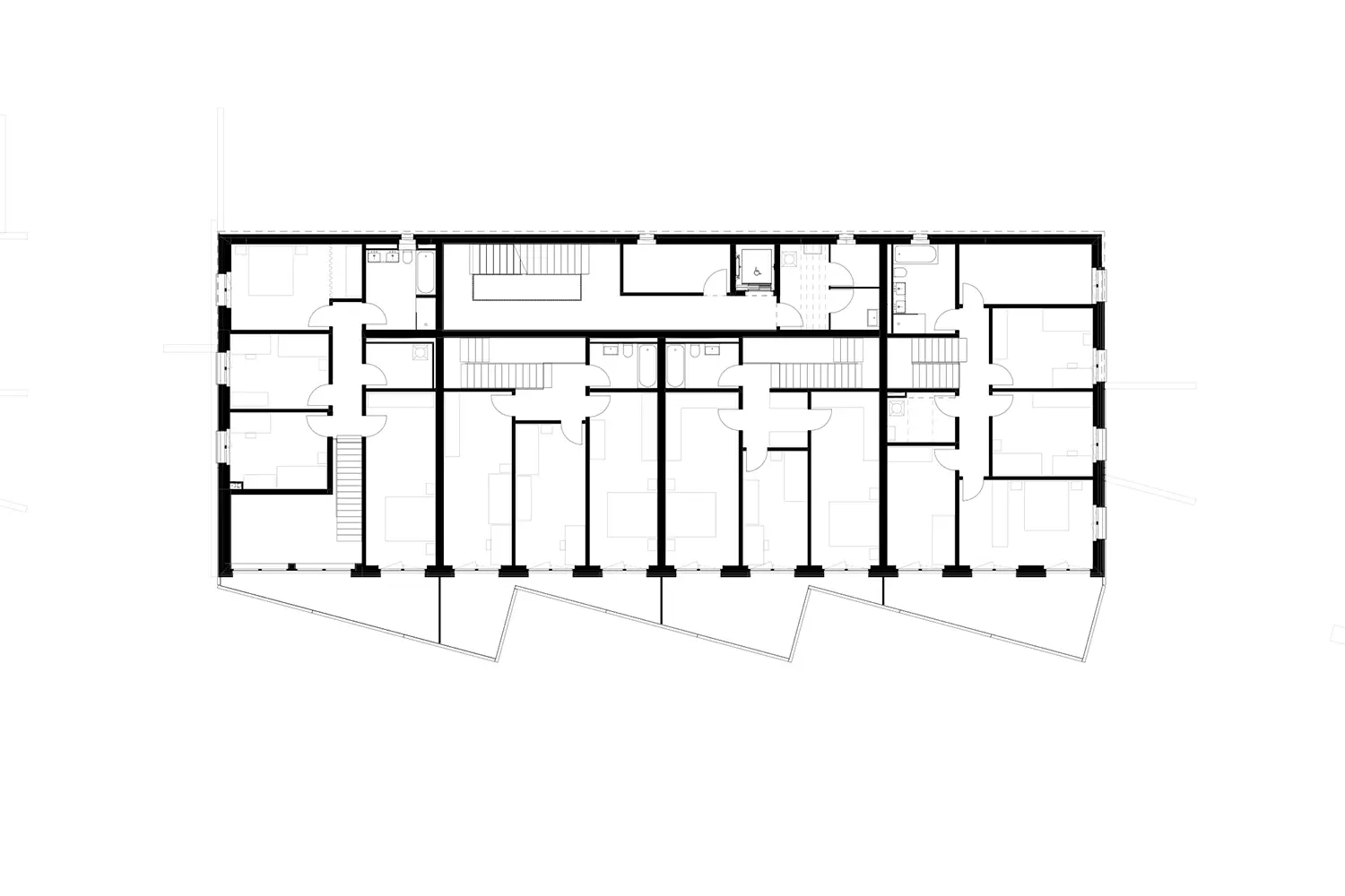
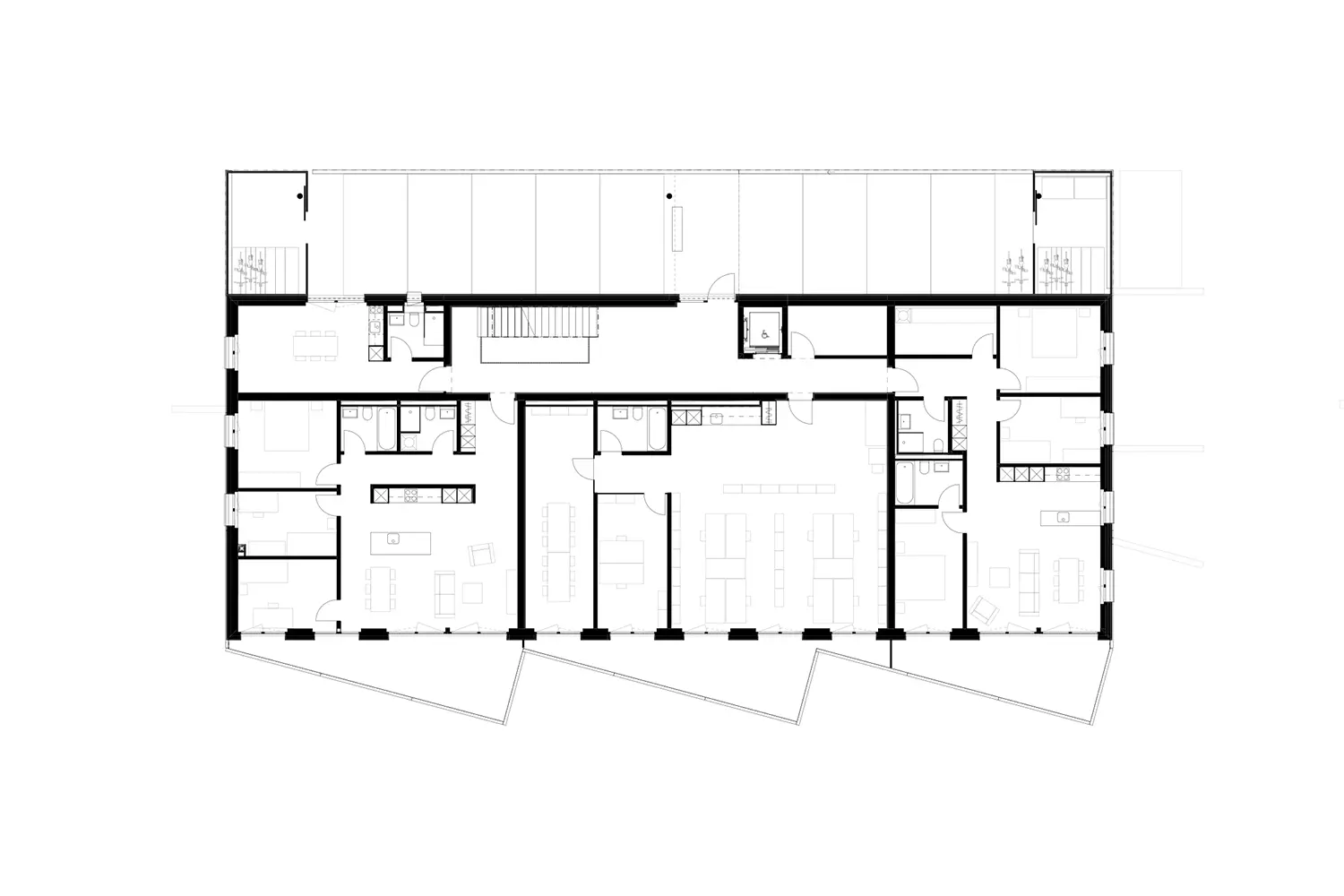
| Programm | 4 Maisonette-Whgen, 2 Geschosswohnungen, 1 Studio, Büroflächen, gemeinschaftliche Dachterrasse |
| Standort | Eggweg, Wetzikon |
| Totalunternehmer | einsgesamtleistungen AG |
| Planung | einsarchitekten AG |
| Auftraggeber | Entwicklung und Verwaltung durch einsimmobilien AG |
| Parzellenfläche | ca. 2'000 m2 |
| Fertigstellung | 2020 |
An zentraler Lage in Wetzikon entstanden acht grosszügige Wohneinheiten und Büroräume direkt am Schlossbach. Das Gebäude ist in einem abschüssigen Gelände situiert, angrenzend an das frequentierte Gebiet um die zentrale Bahnhofstrasse. Die Gebäudeausdehnung orientiert sich an den Wohn- und Geschäftsbauten entlang der Bahnhofstrasse. Vom höher gelegenen Einfamilienhausquartier aus betrachtet, wirkt das Gebäude eingeschossig und zurückhaltend. Ein fast 40 Meter langes Carportdach, das nur auf einer Stütze ruht, empfängt Besucher und Passanten auf der Zugangsseite am Eggweg. Auf der Bachseite präsentieren sich die Balkone mit kräftigen Betonbändern und die privaten Sitzplätze der Parterrewohnungen mit massiven Sitzstufen. Die Balkonfronten erstrecken sich, parallel zum Bachlauf ausgerichtet, vom Gebäude weg und schaffen interessante private Aussenräume mit vielfältigen Nutzungsqualitäten. Die massiven Balkon- und Betonbrüstungen in der Fassade integrieren das Gebäude – ähnlich massiven Gurten – in das Gelände und interagieren mit der Wahrnehmung topografischer Linien. Das Projekt lebt vom spannungsvollen Kontrast seiner beiden Fassaden: Während die dreigeschossige Bachseite mit den städtischen Nachbarbauten in Dialog tritt, fügt sich die eingeschossige Hangseite harmonisch in die kleinteilige Struktur des Einfamilienhausquartiers ein.